情報更新日:1970-01-01

所在地 間取 価格 建物延面積 敷地面積

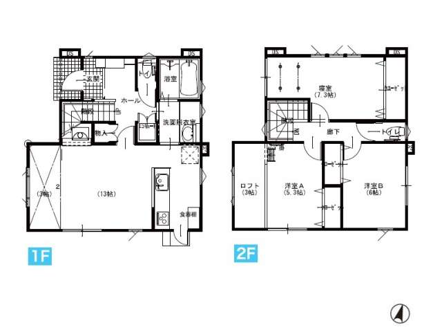
本物件の内容や画像等は全て現況優先とさせていただきます。各画像は参考図となります。

交通機関
学区
詳細間取
周辺施設
その他費用
総戸数 建物構造
築年月 主要採光方向
駐車場 地勢
駐車場複数台 不可 土地権利
用途地域 国土法届
取引態様 現況
引渡 借地料/借地期間 ─ / ─
地目 都市計画
セットバック 接道状況
私道負担 ─ / ─
法令上の制限
建ぺい率/容積率 ─ / ─ 管理 不明
利回り ─ / ─ 修繕積立金
設備
備考
取扱業者 (株)太陽地所青森支店 国土交通大臣免許(2)第9399号 青森県青森市勝田1丁目15番14号
TEL:017-763-0252 FAX:017-763-0253 
(公社)青森県宅地建物取引業協会会員 東北地区不動産公正取引協議会加盟事業者